Your privacy is important to us. This website uses cookies to enhance user experience and to analyze performance and traffic on our website. By using this website, you acknowledge the real-time collection, storage, use, and disclosure of information on your device or provided by you (such as mouse movements and clicks). We may disclose such information about your use of our website with our social media, advertising and analytics partners. Visit our Privacy Policy and California Privacy Disclosure for more information on such sharing.

Log In

Our Brands

Helpful Tools

Search

Explore Salem Hemisphere Fifth Wheels

Home > Salem > Salem Hemisphere Fifth Wheels

Explore Salem Hemisphere Fifth Wheels

Salem Hemisphere Fifth Wheels RVs

Explore Salem Hemisphere Fifth Wheels

SALEM HEMISPHERE STANDARD AND ELITE SERIES FIFTH WHEELS

Fifth wheels loaded with features you’ve asked for and the amazing value you have come to know in America’s Trusted Brand, Salem Hemisphere.

Salem Hemisphere Fifth Wheels Exterior Image
Follow Salem Hemisphere Fifth Wheels on Social Media:

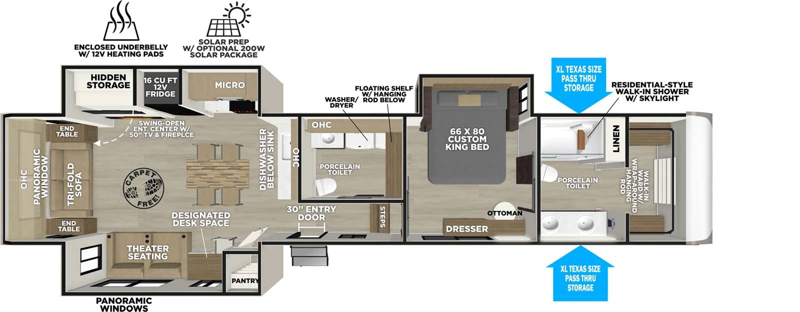
2026 Salem Hemisphere Fifth Wheels Floorplans

Salem Hemisphere Fifth Wheels

Elite Luxury Fifth Wheels

Dealer Stock Only

2026 Salem Hemisphere Fifth Wheels Features & Options

    STANDARD FEATURES
    • Laminated "Aluma Frame" Sidewalls & Floor with Block Foam Insulation
    • 2nd 15K BTU A/C & 3rd A/C Prepped (3rd A/C Prep N/A 286RL)
    • Outdoor Kitchen (356QB, 369BL)
    • Prepped for Roof-Mounted Solar Panel & Charge Controller
    • Versa Queen Convertible Bed/Sofa in Bunk Slides
    • Extra Large Pass Thru Storage with Metal Slam Latch Baggage Doors
    • 31" Glass Front Electric Fireplace (36" in 378FL)
    • Wood Door Casings IPO Plastic Door Casings
    • Porcelain Toilet
    • Back Up Camera Prep
    • Step Above Alumminum Entry Steps (Main Entry Door)
    • Soft Close Hidden Hinges on Cabinet Doors
    • (4) Storage Bins Included Under Bed
    • Side-Mounted Heat Ducts (Not Including Upper Deck)
    • LP Quick Connect
    • Lippert On-The-Go Ladder Prep
    • Gold-Accented Faucets with Stainless Steel Sinks in all Bathrooms
    • Power Stabilizer Jacks & Landing Gear (Optional Auto Level)
    • Single Bowl Undermount Sink w/ Roll Up Sink Cover
    • Back Up Camera Prep
    • Mini-Max Electric Fan in All Bathrooms
    • 50 AMP Service w/ Washer/Dryer Prep
    • LED Awning, Front Cap, Marker & Tail Lights
    • 7-Way "Rain Defense" Plug Holder
    ELEVATED VALUE PACKAGE (INCLUDED)
    • High-End Solid Surface Countertops
    • Square Windows w/ Built in Shades w/ Reflective Thermal-Foil Backing and Painted Hardwood Interior Trim
    • JBL Sound System (Head Unit, Interior Speakers & Exterior Speakers)
    • Residential Style/Sized Oven & Microwave
    • Full Length Barrelled Ceilings Creating Additional Head Height & Approx. 6'5" Upper Deck Head Room & Industry Leading Head Height in Models with Lofts
    • 60K BTU On-Demand Tankless Water Heater
    • Lippert OneControl System - Enhanced Control, Connectivity, and Comfort for RV Owners
    • The Ultimate Interior Lighting Upgrade (4K Puck/Strip Lights & LED Back Lit Bathroom Mirror)
    EXPEDITION PACKAGE (INCLUDED)
    • Nitrogen-Filled Radial Tires w/ Aluminum Rims
    • 2" Accessory Hitch For Storage Rack, etc. (N/A 356QB, 375FAM & 378FL)
    • 18K BTU Main A/C Furrion Chill Cube
    • 50" LED Smart TV
    • Accesibelly Underbelly Panels w/ 12V Tank Heaters on all Holding Tanks
    • 16 Cubic Foot Refrigerator (12V)
    • 30" Wide Main Entry Door with Window
    • Full-Profile Front Cap with HUGE Functional Wardrobe (378FL Uses Panoramic Windshield in-place-of Wardrobe)
    OPTIONS
    • Free-Standing Dinette (Standard on 286RL, 325RL, 375FAM, & 378FL)
    • 200 Watt Roof Mounted Solar Package (200W Panel, 30Amp Charge Controller, 12V Battery)
    • 3rd 15K BTU A/C (N/A 286RL)
    • 4-Point Electric Auto Level (286RL & 325RL)
    • 6-Point Electric Auto Level
    STANDARD FEATURES
    • Full-Profile Wrap-Around Front Cap
    • 2nd 15K BTU A/C & 3rd A/C Prepped
    • Laminated "Aluma Frame" Sidewalls & Floor with Block Foam Insulation
    • Prepped for Roof-Mounted Solar Panel & Charge Controller
    • Wood Door Casings IPO Plastic Door Casings
    • 36" Glass Front Electric Fireplace
    • Mini-Max Electric Fan in All Bathrooms
    • (4) Storage Bins Included Under Bed
    • Soft Close Hidden Hinges on Cabinet Doors
    • Porcelain Toilet
    • Extra Large Pass Thru Storage with Slam Latch Baggage Doors
    • Step Above Alumminum Entry Steps w/ Strut Assist (Main Entry Door)
    • Lippert On-The-Go Ladder Prep
    • Side-Mounted Heat Ducts (Not Including Upper Deck)
    • Power Stabilizer Jacks & Landing Gear
    • Single Bowl Undermount Sink w/ Roll Up Sink Cover
    • LP Quick Connect
    • Back Up Camera Prep
    • 7-Way "Rain Defense" Plug Holder
    • LED Awning, Front Cap, Marker & Tail Lights
    • Gold-Accented Faucets with Stainless Steel Sinks in all Bathrooms
    • 50 AMP Service with Washer/Dryer Prep
    ELEVATED VALUE PACKAGE (INCLUDED)
    • High-End Solid Surface Countertops
    • Square Windows w/ Built in Shades w/ Reflective Thermal-Foil Backing and Painted Hardwood Interior Trim
    • JBL Sound System (Head Unit, Interior Speakers & Exterior Speakers)
    • Residential Style/Sized Oven & Microwave
    • Full Length Barrelled Ceilings Creating Additional Head Height & Approx. 6'5" Upper Deck Head Room
    • 60K BTU On-Demand Tankless Water Heater
    • Lippert OneControl System - Enhanced Control, Connectivity, and Comfort for RV Owners
    • The Ultimate Interior Lighting Upgrade (4K Puck/Strip Lights & LED Back Lit Bathroom Mirror)
    EXPEDITION PACKAGE (INCLUDED)
    • Nitrogen-Filled Radial Tires w/ Aluminum Wheels
    • 72" x 80" King Bed in Main Bedroom
    • Full-Profile Wrap Around Front Cap w/ Windshield
    • 18K BTU Main A/C Furrion Chill Cube
    • 55" LED SMART TV
    • 30" Wide Main Entry Door with Window
    • 20 Cubic Foot Refrigerator (12V)
    • Accesibelly Underbelly Panels w/ 12V Tank Heaters on all Holding Tanks
    • In-Line Water Filteration System
    OPTIONS
    • 200 Watt Roof Mounted Solar Package (200W Panel, 30Amp Charge Controller, 12V Battery)
    • 6-Point Electric Auto Level
    • 3rd 15K BTU A/C
    • Elite Outdoor Bar & Entertainment Center
    STANDARD FEATURES
    • 24" 4-Burner Gas Range & 30" OTR Residential Microwave
    • Durable Textured Lining Exterior Storage with Pull-Out Tray
    • Leuvered Openings Above Custom King Bed Loft
    • Ceiling Fan in Kitchen to Help Air Circulation
    • Flat Pitched Roof Sheds Water to the Off-Door-Side
    • Park Model-Style Front End with Three Windows Facing the Front of The Campsite (STD)
    • Vacuum-Bonded Laminated Sidewalls with Block Foam Insulation
    • Aluminum-Framed Floors with 5/8" Tongue & Groove Flooring
    • 6' 8" Clearance in All Rooms (excluding lofts)
    • Prepped for Roof-Mounted Solar Panel & Charge Controller
    • Motion Sensor Lights by Spiral Stair Case
    • 48" Fireplace in Living Room & 31" Fireplace in Bedroom
    • Residential-Inspired Wood Door Casings
    • Backlit Mirrors in Both Bathrooms
    • Porcelain Toilet in All Bathrooms
    • Back Up Camera Prep
    • Removable Step Above Alumminum Entry Steps (Main Entry Patio Door)
    • Soft Close Hidden Hinges on Cabinet Doors
    • Soft Close Ball-Bearing Drawer Glides
    • (4) Storage Bins Included Under Bed
    • LP Quick Connect
    • Gun Metal Grey Kitchen Sink with Pull Down Sprayer and Glass Rinser
    • Pop Up Outlets in Kitchen Area
    • Porcelain Sink in Full Bathroom
    • Hardwood Temple Cherry Door and Drawer Fronts with Matte Gold Hardware
    • LED Awning, Front Cap, Marker & Tail Lights
    • 7-Way "Rain Defense" Plug Holder
    ELEVATED VALUE PACKAGE (INCLUDED)
    • High-End Solid Surface & Maple-Stained Wood Countertops
    • Square Windows w/ Built in Shades w/ Reflective Thermal-Foil Backing and Painted Hardwood Interior Trim
    • JBL Sound System (Head Unit, Interior Speakers, Exterior Speakers & Subwoofer)
    • 60K BTU On-Demand Tankless Water Heater
    • (3) 15K BTU Quiet Cool Ducted Air Conditioner Units
    • Side-by-Side Built-In Washer & Dryer
    • Lippert OneControl System - Enhanced Control, Connectivity, and Comfort for RV Owners
    • Premium Alley Grey High-Gloss Gel Coat Fiberglass Sidewalls
    EXPEDITION PACKAGE (INCLUDED)
    • 20 Cubic Foot Refrigerator (12V)
    • Race Track Air Conditioner Duct System (for max cooling efficiency)
    • 65" LED Smart TV
    • Accesibelly Underbelly w/ 12V Tank Heaters on all Holding Tanks
    • Triple-Paned Slider Entrance Door
    • 72" x 80" King Bed in Main Bedroom
    • Nitrogen-Filled Radial Tires w/ Aluminum Rims
    • In-Line Water Filteration System
    • Dual Outdoor Refrigerators For Maximum Exterior Cold Storage

Salem Hemisphere Fifth Wheels Update Alerts

Please sign up below if you would like to receive notifications when we make updates to this brand. Or, if you only want updates on a particular floorplan, you can select to be updated on each one individually.